宜兴市森诺特环保科技有限公司专业生产销售机械格栅、回转式机械格栅、污泥脱水机等环保设备。

机械格栅厂家

产品定制设计制作,实地生产,现场安装,售后服务!

服务热线:

138-1256-9799

当前位置:主页 >产品知识

格栅cad平面图,一看就明白了

作者:森诺特环保 时间:2019-03-03 18:37:51 阅读量:1048

一、内容介绍

  如今环保设备的发展势头正热,而机械格栅作为污水处理中不可或缺的设备,自然而然受到人们的追捧。机械格栅不光能后续工序的正常运行,而且维护简单能够减少运营成本。
 
  下面小编就给大家介绍一下机械格栅cad平面图相关内容是什么?
 
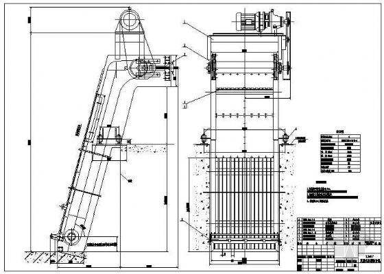
  机械格栅cad平面图:
 
机械格栅cad平面图
 
  机械格栅:
 
  一、工作原理及构造
 
  回转式格栅除污机由1传动系统、2机架、3耙齿杆、4牵引链条、5水下导向轮、6附栅、7主栅、8挡渣板等组成。传动系统通过牵引链条带动耙齿杆沿着导轨做上下回转运动,齿耙从栅条的后部下行,在底部经水下导向轮改向后运行至栅条前部,由下向上地将被栅条拦住的漂浮物顺着挡板捞至卸渣口处,卸入输送带上或垃圾车里。
 
  二、主要特点
 
  1、独特的结构设计使运行平稳可靠,坚固耐用;
 
  2、整机安装调试后出厂,现场安装简便。
 
  3、独特的附栅结构,耙齿杆经过时平稳无噪音;
 
  4、耙齿呈v型分布,可同时捞取主、附栅条上的拦截物,同时可防止耙齿上行运动时大块拦截物脱落,捞渣,分离效率高;
 
  5、特设过扭保护装置,使用安全;
 
  6、采用等距分布多组耙齿杆自动连续进行拦污排渣,可防止大量垃圾堵塞栅条;
 
机械格栅cad平面图
 
  三、适用范围
 
  1、用于造纸、屠宰、皮革、制糖、酿酒、食品加工、纺织、印染、石化、等工业废水处理中,去除悬浮物、漂浮物、沉淀物等固态物质;
 
  2、用于造纸、酒精、淀粉、食品加工等行业中的回收纤维、渣料等有用物质;
 
  3、用于城市污水处理中代替除尘池。
 
  四、设备优点
 
  1、设备可以根据用户需要任意调节设备运行间隔,实现周期性运转;
 
  2、可以根据格栅前后液位差自动控制;并且有手动控制功能,以方便检修。
 
  3、用户可根据不同的工作需要任意选用。
 
  4、 由于该设备结构设计合理,在设备工作时,自身具有很强的自净能力,不会发生堵塞现象,所以日常维修工作量很少。
 
机械格栅cad平面图
 
  五、设备安装
 
  1、设备可直接安装在预制的钢筋混凝土沟渠中。
 
  2、除动格栅片外,一般不需要在现场进行组装。
 
  3、设备安装就位后,当机架与沟渠内两侧存在较大间隙时,可考虑用薄型塑料板加以封闭,以免影响拦污效果。
 
  4、放置格栅的沟渠在施工中,要求渠壁尽量平整垂直,渠底面应保持水平平整。
 
  5、渠壁顶边应按格栅安装基础图的要求预埋200×100×10钢板四块,用于焊接基础螺栓。
 
  6、设备安装就位后,再进行电器控制装置的安装。电器控制系统的设置和调整,由本公司按技术要求派专人进行。

  机械格栅工作原理:
 
  在排水工程中,格栅是用来去除可能堵塞水泵机组及管道阀门的较粗大悬浮物,并后续处理设施能正常运行,是由一组(或多组)相平行的金属栅条和框架组成,倾斜安装在进水的渠道里,或进水泵站集水井的进口处,以拦截污水中粗大的悬浮物及杂质。为此我们机械格栅出先这款产品,并且还根据不同形式做了分类。
 
  目前在很多城市污水处理行业中都会用到格栅除污机,但是很多人对于格栅除污设备的了解不是很多,其实这种设备的应用非常重要,对于环境也有很多好处,城市污水如果无法得到及时处理,就容易对环境造成负担和不良影响,而使用格栅除污设备就可以降低这种危害,所以在很多工业加工领域中都会使用格栅除污设备来完成污水处理流程,这样可以提升工作效率,也可以为人们的生活环境减少更多危害,这些都是格栅除污设备的重要作用。
 
机械格栅
 
  使用格栅除污机的好处也非常多,在通过设备处理污水时只需要提前设定好参数,设备就可以马上进入处理程序中,在整个运行期间不需要人们进行其他辅助性操作,设备可以稳定高效的运转,另外设备还增加了保护装置,一旦在使用格栅除污设备期间出现了问题,设备都可以及时暂停,避免引发严重的故障问题。
 
  通过格栅除污机进行污水处理期间,也可以避免设备过载,有的时候需要处理的污水量比较大,这个时候可能就会对设备造成负担,当载荷量逐渐上升时设备也会因此而出现质量问题,所以过载保护装置的应用可以让设备的运行更加安全稳定。
 
  工作人员平时在使用格栅除污机的过程中,还需要定期进行检查和维护,这样能够提升设备的工作效率,也可以降低故障的发生几率。
 
  在进行城市污水治理工作时,需要通过专业设备完成治理流程,这样可以提升处理速度,也可以让污水处理工作更加高效,以往在进行这些作业时选用的设备在技术方面存在较大的缺憾,而随着科学技术的不断进步,以及人们对于污水治理工作的要求越来越高,很多场所都开始选用机械格栅,格栅设备的应用范围比较广,适用于食品加工单位和造纸行业中使用,设备选用的技术先进,所以在治理污水的过程中更加高效便捷。
 
  安装使用机械格栅设备之前,需要对产品的工作原理和技术特点有一定的了解,在启动设备之后,格栅设备可以连续不间断的运转,设备由很多不同的耙齿元件构成,在运行时会在电机的驱动下对污水进行处理,耙齿的间距可以随意选择,也可以按照实际需求来定制,这样能够达到更好的过滤效果,让固液分离操作更好的完成。
 
  使用机械格栅设备的过程中效率有,而且所有的元件装置都是采用防腐蚀材料制作而成的,这样设备在运行的时候可以更加高效稳定,也不会产生任何噪音,对于能源的消耗较低,工作人员在使用设备之前,只需要提前做好参数设定即可,设备可以自动完成污水处理任务。
 
  现在使用机械格栅设备可以满足不同场所的污水处理要求,所以将来这种设备的应用将会更加普遍。
 
机械格栅
 
  在机械格栅运行的过程中可以及时对污物进行拦截,设备的运行状态稳定可靠,还可以连续运转,所以对于污水量比较大的加工场所中选用这种设备可以达到良好的处理效果。目前很多城市和地区都存在水质污染的问题,而很多水质污染情况是由于工业生产所造成的,所以在这些加工单位中必须要通过专业的设备对污水进行处理,然后才可以排放,避免对环境造成负担,在这些加工场所中机械格栅可以发挥重要作用,那么这种设备产品可以达到自动运行目的吗?
 
  使用机械格栅设备的过程中可以将污水中的杂质清理干净,而处理污水时,其实困难的就是这个作业步骤,不同地区和不同加工单位中污水中所含有的污染物种类不同,而固液分离工作很难进行,使用格栅设备可以通过耙齿等装置将这些污物进行处理,避免继续留存在污水中,所以和传统的污水处理方式相比,这种设备可以达到更高的工作效率了。
 
  在使用机械格栅的过程中,可以自动运转,工作人员只需要提前设定好参数即可,这样设备就可以马上按照设置要求运行,如果在处理污水期间,污水量超过了设备可以承受的范围,设备就会自动停止,而不会继续运转,这样可以避免引发故障问题,并对装置进行自动保护,所以厂家使用格栅设备对于污水处理工作有很多好处,这种设备的实际应用也为环保事业发展做出了一定的贡献。

  自动化程度高、 分离效率高、动力消耗小、无噪音、耐腐蚀性能好,在无人看管的情况下可连续稳定工作,设置了过载安全保护装置,在设备发生故障时,会自动停机,可以避免设备超负荷工作。 该设备可以根据用户需要任意调节设备运行间隔,实现 周期性运转;可以根据格栅前后液位差自动控制;并且有手动控制功能,以方便 检修。用户可根据不同的工作需要任意选用。 由于该设备结构设计合理,在设备工作时,自身具有很强的自净能力,不会发生 堵塞现象,所以日常维修工作量很少。
 
  机械格栅cad平面图,小编介绍的也差不多了,大家都看明白了吗。机械格栅是非常实用的污水处理设备,效率高,设计合理,是不错的选择!如果大家对机械格栅还有什么疑问,欢迎随时与小编联系!

二、项目展示

项目展示1
项目展示2
项目展示3
项目展示4
项目展示5
项目展示6
项目展示7
项目展示8
项目展示9
如非注明文章皆由机械格栅厂家“森诺特环保”撰写,转载请注明出处!
文章地址:http://www.snthb.com/news/96.html