宜兴市森诺特环保科技有限公司专业生产销售机械格栅、回转式机械格栅、污泥脱水机等环保设备。

机械格栅厂家

产品定制设计制作,实地生产,现场安装,售后服务!

服务热线:

138-1256-9799

当前位置:主页 >产品知识

内进流格栅原理图 产品六大特点

作者:森诺特环保 时间:2019-01-10 08:48:39 阅读量:333

一、内容介绍

    目前,人们的生活方式的多种多样,人们对水的需求量也越来越大,使污水的成分变得非常复杂。污水是很难掌控的,很多处理设备对于污水处理厂来说,有着一定的成本负担。内进流格栅可以很好地解决这个问题。很多处理工艺都需要使用内进流格栅,内进流格栅使当地经济发生了变化。
 
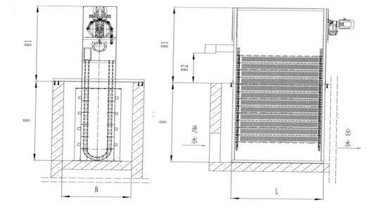
    内进流格栅通常用于工业污水如纺织、造纸等工艺及之涞水预处理工艺。的驱动装置位于机架上部,为进口品牌轴装式减速机。在机架前后二侧设置了螺旋式调节装置,调整传动链条紧松。内进流格栅的机架为不锈钢板材与型钢组装、焊接成的一整体式长方体刚性结构。机架下部迎水端开有一个进水洞口,机架的前后壁板上设有导轨,其上部还设有一内部集渣槽,并延伸至机外。从下面的内进流格栅原理图就可以知道内进流格栅的原理是什么,内进流格栅的特点又是什么?
 
    下面小编就给大家介绍一下内进流格栅原理图产品六大特点是什么!
 
    内进流格栅原理图原理

 
内进流格栅原理图
    自进流网板细格栅自机架、驱动系统、网板系统、反冲洗系统、除渣系统及电控系统六大部分组成。减速电机驱动链轮转动,链轮带动网板连续回转;污水从进水口进入格栅,经网板过滤,滤后水流向网板外侧,污物被截留在同板内表面,随着网板连续回转带至顶部;反冲洗系统冲洗洗板外侧,在冲洗水作用下污物被冲洗到收渣槽,并随着冲洗水一起流出排污口。
 
    内进流格栅原理图产品六大特点
 
    1、去除率高,可有效去除毛发等纤维状物;
    2、反冲洗水将截留在网板上的污物清除,不会落入滤后水,避免二次污染;
    3、网板采用非金属注塑件,耐磨损、耐腐蚀
    4、水下不设传动部件,无需维护,更便于检修及维护;
    5、易磨损件完全标准化,更换方便,操作简单
    6、运转平稳,震动轻,噪音小

 
内进流格栅原理图
    以上就是小编对于内进流格栅原理图产品六大特点的内容介绍,如果有什么疑问,欢迎来电咨询!

二、项目展示

项目展示1
项目展示2
项目展示3
项目展示4
项目展示5
项目展示6
项目展示7
项目展示8
项目展示9
如非注明文章皆由机械格栅厂家“森诺特环保”撰写,转载请注明出处!
文章地址:http://www.snthb.com/news/72.html